











Beschreibung
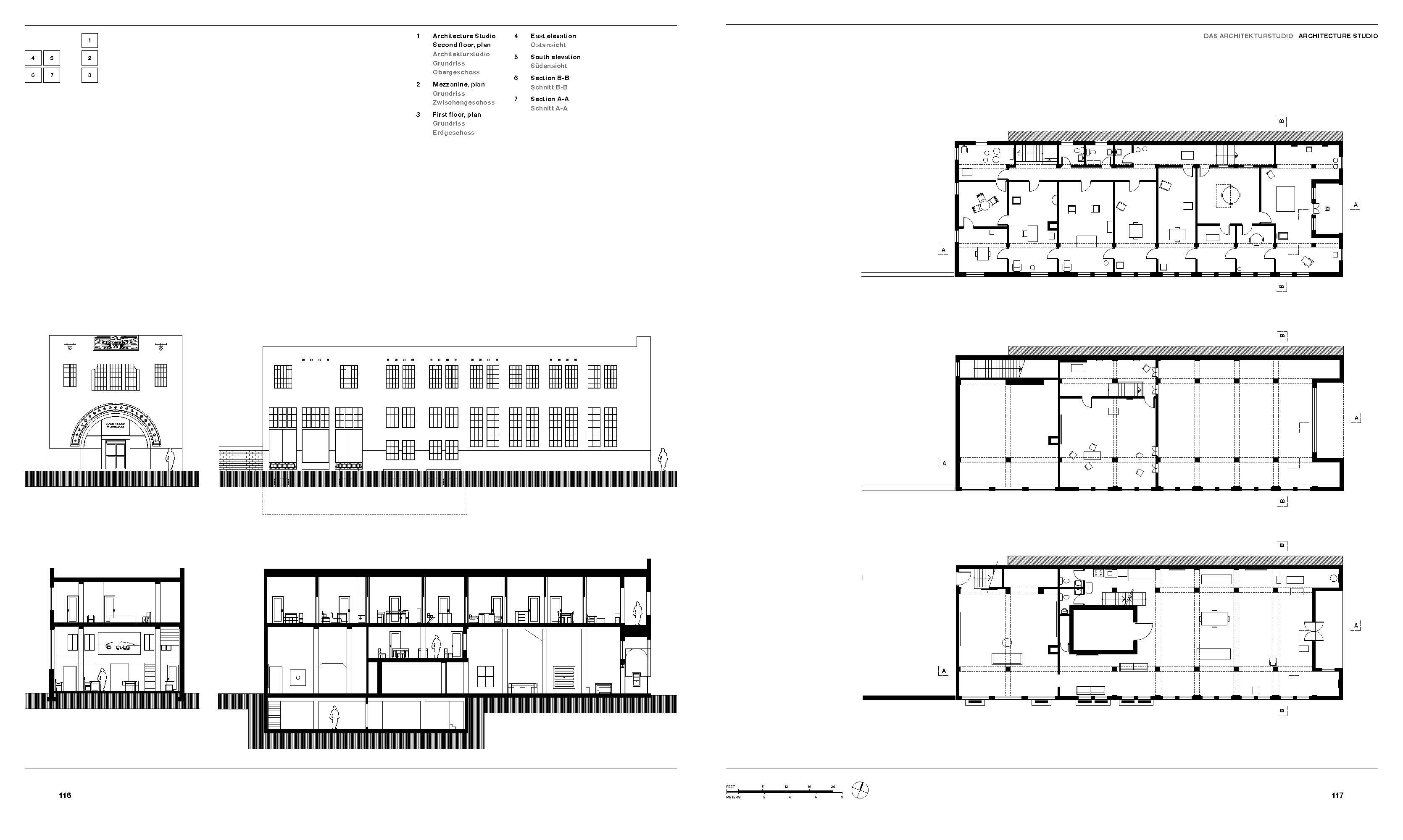
Donald Judd was one of the most important exponents of American Minimal Art. Among the lesser-known aspects of his work are the numerous built architectural projects in which he explores the relationship between architecture art, furniture, and landscape. One...